北新地の本通り面する5階居抜き物件出ました!!
前テナント様はラウンジです。約13.58坪☆
とても綺麗な内装で、すぐにでも営業可能な状態です。
電気・ガス・水道設備ももちろんございます!
※契約後に希望であれば絨毯張替え・壁・天井塗り替えも
させていただきます。保証金相談可能。
| お問い合わせNo.:1099 | |
| 家賃 / 共益費 | 330,000円 / 0円 |
|---|---|
| 保証金 / 解約引き | 3,000,000円 / 2,640,000円 |
| 完成年月 | 1978年5月 |
| 間取り | 事業用 |
| 専有面積 | 44.89m2 |
おすすめポイント!
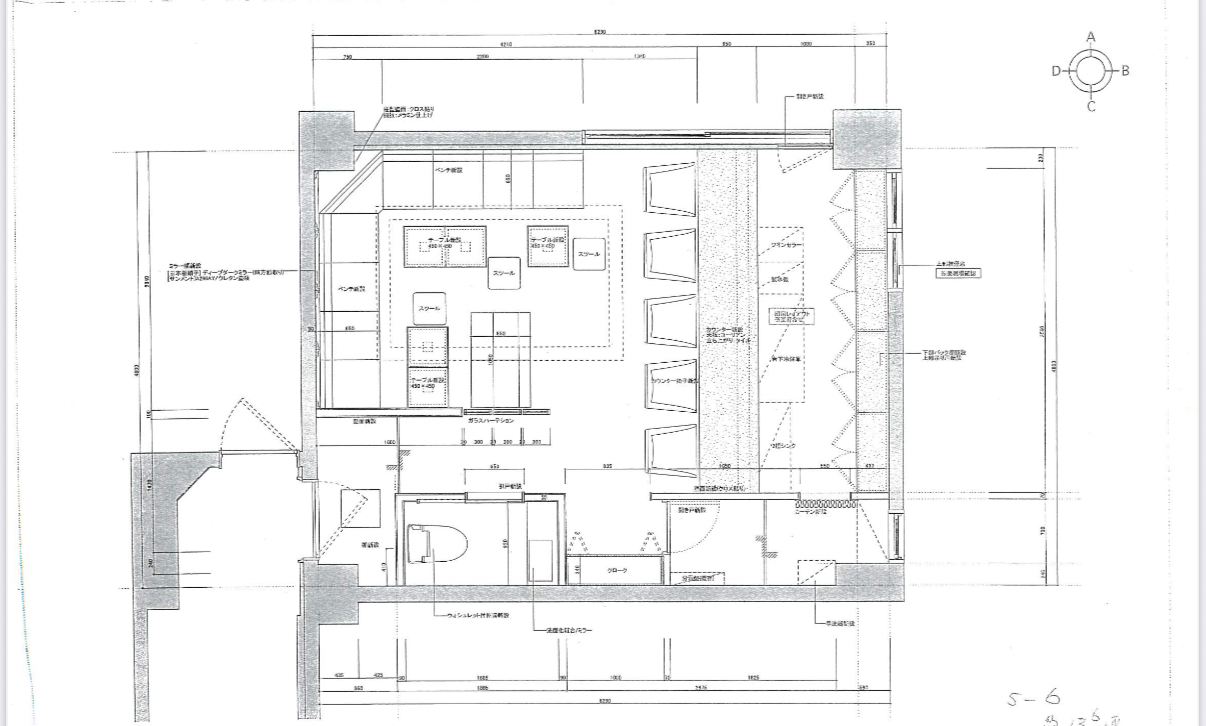
間取り
物件画像一覧
周辺地図
物件情報
| 種別 | その他 | エレベーター | 有 |
|---|---|---|---|
| 構造 | 鉄筋コンクリート造 | 完成年月 | 1978年5月 |
| 所在地 | 大阪府大阪市北区曽根崎新地 | 物件設備 |
都市ガス エレベータ |
| 駐車場 | 無 | ||
| タイプ | 事業用 | ||
| 家賃 | 330,000円 | ||
| 共益費 | 0円 | ||
| 敷金 | 0円 | ||
| 礼金 | 0円 | ||
| 坪数 | 0坪 | 交通 |
JR東西線/北新地/徒歩3分 |
| 専有面積 | 44.89m2 | ||
| 保証金 | 3,000,000円 | ||
| 解約引 | 2,640,000円 | ||
| 定期借家 | 年 | ||
| 方角 | 東 |
部屋NO.553002200011241